| Specifications | Units | HB-3/1 | HB-9/3 |
| Power supply | 220-240/1/50 | 380-415/3/50 | |
| Auxiliary heater power | kW | 3 | 9 |
| Maximum power consumption | kW | 3.2 | 9.2 |
| Maximum input current | A | 15.8 | 16.2 |
| Electric shock protection | I | I | |
| IP class | IPX1 | IPX1 | |
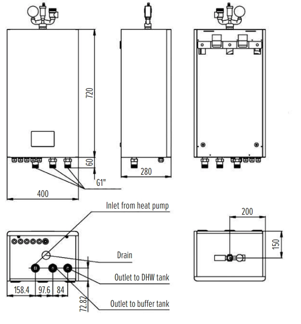
| Water supply connection | inch | G1 | G1 |
| Pressure loss | kPa | 10 | 10 |
| Water pressure min/max | MPa | 0.1/0.3 | 0.1/0.3 |
| Sound pressure leve | dB(A | 35 | 35 |
| Dimensions (L×W×H) | mm | 400×280×720 | 400×280×720 |
| Package dimensions (L×W×H) | mm | 460×355×862 | 460×355×862 |
| Net weight | kg | 31 | 33 |
| Gross weight | kg | 34 | 36 |
| Expansion tank | L | 6 | 6 |
| Internet gateway | R485 | R485 |
