The inbuilt UV-C ray emitter module performs an effective and
efficient air sterilization both on the unit’s coil surface and the air
that passes through. This module’s performance has been certified
by the independent laboratory Texcell.

According to users requirements, the static pressure can be adjusted by wire controller instead of the traditional way of changing the red and white terminals. The maximum static pressure of the whole series can reach 100Pa.
The unit can connect multiple rooms through air duct, and can be flexibly arranged according to different house types, one air conditioner, multi-room sharing.


Standard condensate water lifting pump, standard head 700mm and built-in float switch, convenient to cooperate with the actual situation of the site, condensate water discharge air conditioning.
Air intake possible from the rear or bottom of the unit.


The devices have a built-in drain pump with high lifting capacity - up to 750 mm.
Three drain way.


Two static pressure values of 50 and 100 Pa, allowing adjustment to the air duct network
The screws of the electrical compartment are positioned at a 45° angle, making the board easy to connect and service.

| Specifications | Units | MIDJ- 05X1EV2AA |
MIDJ- 07X1EV2AA |
MIDJ- 09X1EV2AA |
MIDJ- 12X1EV2AA |
MIDJ- 16X1EV2AA |
MIDJ- 18X1EV2AA |
MIDJ- 24X1EV2AA |
MIDJ- 28X1EV2AA |
MIDJ- 30X1EV1AA |
MIDJ- 38X1EV1AA |
MIDJ- 48X1EV1AA |
MIDJ- 54X1EV1AA |
| Capacity | |||||||||||||
| Cooling | kW | 1,50 | 2,20 | 2,80 | 3,60 | 4,50 | 5,60 | 7,10 | 8,00 | 9,00 | 11,20 | 14,00 | 16,00 |
| Heating | kW | 1,70 | 2,50 | 3,20 | 4,00 | 5,00 | 6,30 | 8,00 | 9,00 | 10,00 | 13,00 | 16,30 | 18,00 |
| Electrical Parameters | |||||||||||||
| Power supply | Ph/V/Hz | 1/220~230/50/60 | |||||||||||
| Ventilation | |||||||||||||
| Air flow (H/M/L) | m3/h | 515/ 440/390 |
545/ 470/390 |
545/ 470/390 |
570/ 495/420 |
700/ 625/550 |
915/ 765/640 |
1275/ 1050/875 |
1275/ 1050/875 |
1450/ 1200/1000 |
2000/ 1700/1400 |
2150/ 1700/1400 |
2350/ 1950/1600 |
| Sound pressure (H/M/L) |
dB(A) | 29/27/25 | 30/28/25 | 30/28/25 | 31/29/27 | 32/30/28 | 33/31/29 | 34/31/29 | 35/33/30 | 36/33/30 | 38/35/32 | 40/36/32 | 42/38/34 |
| Sound power (H/M/L) |
dB(A) | 41/39/37 | 42/40/37 | 42/40/37 | 43/41/39 | 44/42/40 | 45/43/41 | 46/43/41 | 47/45/42 | 48/45/42 | 50/47/44 | 52/48/44 | 54/50/46 |
| Installation – Dimensions | |||||||||||||
| Net dimensions (WxDxH) |
mm | 700x700x248 | 1100x700x248 | 1500x700x248 | |||||||||
| Packaged unit dimensions (WxDxH) |
mm | 932x835x280 | 1332x835x280 | 1698x857x305 | |||||||||
| Net/gross weight |
Kg | 27,0/ 32,0 |
27,0/ 32,0 |
27,0/ 32,0 |
27,0/ 32,0 |
28,5/ 33,5 |
36,8/ 43,4 |
36,8/ 43,4 |
36,8/ 43,4 |
39,4/ 45,4 |
48,3/ 56,5 |
51,3/ 59,5 |
51,3/ 59,5 |
| Ø Liquid pipe | mm (inch) |
6,35 (1/4) |
6,35 (1/4) |
6,35 (1/4) |
6,35 (1/4) |
6,35 (1/4) |
6,35 (1/4) |
9,52 (3/8) |
9,52 (3/8) |
9,52 (3/8) |
9,52 (3/8) |
9,52 (3/8) |
9,52 (3/8) |
| Ø Gas pipe | mm (inch) |
9,52 (3/8) |
9,52 (3/8) |
9,52 (3/8) |
12,70 (1/2) | 12,70 (1/2) | 12,70 (1/2) | 15,88 (5/8) |
15,88 (5/8) |
15,88 (5/8) |
15,88 (5/8) |
15,88 (5/8) |
15,88 (5/8) |
| Static pressure (Standard/Max.) |
Pa | 20/200 | 20/200 | 20/200 | 20/200 | 20/200 | 20/200 | 20/200 | 20/200 | 20/180 | 20/180 | 20/180 | 20/180 |
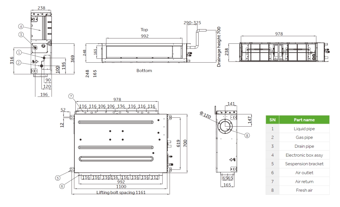
MIDG-38X1EV2AD(H) MIDG-48X1EV2AD(H) MIDG-54X1EV2AD(H) MIDJ-38X1EV1AA MIDJ-48X1EV1AA MIDJ-54X1EV1AA

Dimensions
MIDJ-05X1EV2AA MIDJ-07X1EV2AA MIDJ-09X1EV2AA MIDJ-12X1EV2AA MIDJ-16X1EV2AA

Dimensions
MIDJ-18X1EV2AA MIDJ-24X1EV2AA MIDJ-28X1EV2AA MIDJ-30X1EV1AA
