These improvements result in MRF-6 systems becoming more robust and versatile, creating opportunities for tackling larger and more intricate air conditioning and cooling projects.
The new MRF series features advanced scroll compressors with two additional discharge valves. The new construction allows optimal pressure control inside the compressor. Due to this enchancement, the stability of operations at high and low revolution speeds has been significantly improved. And low level of discharge pressure pulsations was reached. Improved operating parameters increase the service life of the compressor and reduce energy consumption of systems as a whole
Oil return efficiency
If the compressor operate at low frequency, oil return is only through the capillary. If the compressor operate at high frequency, oil return is through the capillary and solenoid valve. Oil cross-change technology performs equalizing of oil level in multi-compressor units.
Oil level control
Additional pipe is used for oil equalizing between the outdoor units in multi unit combination. This technology guarantees a normal oil level in all compressors of all outdoor units.
Concentrated winding motor achieves “High Output” and “Total Efficiency Improvement”
The newly designed high performance CPU enables high precision optimization for compressor speed, which leads to concentrated winding motor use. Our product achieves high output and better energy saving effects and in particular improves seasonal efficiency rating.
Discharge optimization
The introduction of a new multiport discharge area within the compressor represents a significant enhancement in pressure control, offering improved balance and optimization. This innovation has led to notable performance improvements, particularly in the medium frequency range, resulting in higher annual efficiencies for the system.
Electronic expansion valves are set for all the ODUs and IDUs To ensure effective refrigerant distribution among ODUs and IDUs, achieve the same effect and comfort in different rooms.
Sectional heat exchanger design
Sectional heat exchanger can ajust its capacity depending on current load. This construction allows operation with the low loads (when only 1-2 indoor units operate, e.g.)
Improved Heat-exchanger
With piping layout rearranged from header to heat exchanger, refrigerant distribution flow has improved and maximum energy efficiency has been achieved. Heat
exchanger has improved refrigerant distribution and increased effectiveness. Furthermore due to expansion of effective heat transfer area in heat exchanger, energy efficiency has increased.
Recycling operation
Recycling operation, longer life of compressor
Multiple modes available to meet the needs of different users
Operation mode: cooling priority, heating priority, cooling only, heating only, and VIP priority.
Silent mode: seven-position silent mode available (night time silent mode and six-position silent mode).
Static pressure mode: No static pressure mode, low static pressure mode, medium static pressure mode, and high static pressure mode.
Compressor double protection
Base on the basic gas discharge sensor, MOV 6 add the oil temperature sensor at the bottom of compressor.
Main functions of the oil temperature sensor
Thunder protection
There is surge arrester in the terminal block to avoid high voltage peaks.
Technical characteristics
T1 3PH/380~400V/50(60)Hz
Single Module: 8/10/12/14/16HP
Specifications | Units | MOV6-08X1EW1AD | MOV6-10X1EW1AD | MOV6-12X1EW1AD | MOV6-14X1EW1AD | MOV6-16X1EW1AD | ||
/ | / | / | / | / | ||||
Combination model | / | / | / | / | / | |||
/ | / | / | / | / | ||||
Capacity range | Hp | 8 | 10 | 12 | 14 | 16 | ||
Capacity | Cooling | kW | 25.2 | 28 | 33.5 | 40 | 45 | |
Heating | kW | 27.3 | 31.5 | 37.5 | 45 | 50 | ||
Power supply | Ph/V/Hz | 3/380-400/50/60 | 3/380-400/50/60 | 3/380-400/50/60 | 3/380-400/50/60 | 3/380-400/50/60 | ||
Rated power input | kW | 5.79 | 7.00 | 8.59 | 10.26 | 11.90 | ||
Cooling | Max power input | kW | 14.02 | 14.38 | 14.73 | 16.91 | 22.68 | |
Rated current | A | 9.57 | 11.56 | 14.19 | 16.94 | 19.66 | ||
Electrical parameters | Max current | A | 23.09 | 23.68 | 25.1 | 28.4 | 36.8 | |
Rated power input | kW | 6.00 | 7.08 | 8.72 | 10.71 | 12.05 | ||
Heating | Max power input | kW | 12.72 | 13.23 | 13.68 | 15.60 | 17.20 | |
Rated current | А | 9.91 | 11.69 | 14.40 | 17.69 | 19.90 | ||
Max current | А | 20.95 | 21.79 | 22.1 | 25.2 | 27.88 | ||
EER | 4.35 | 4.00 | 3.90 | 3.90 | 3.78 | |||
COP | 4.55 | 4.45 | 4.30 | 4.20 | 4.15 | |||
SEER | 7.13 | 6.95 | 6.84 | 6.48 | 5.99 | |||
SCOP | 5.15 | 5.08 | 4.98 | 4.73 | 4.16 | |||
Air flow cooling/heating | m³/h | 15000/13200 | 15000/13200 | 15000/:13200 | 15000/13200 | 15600/14400 | ||
Performance | Sound pressure level | dB(A) | 57 | 57 | 59 | 59.5 | 61 | |
Sound power level | dB(A) | 73 | 73 | 75 | 76 | 77 | ||
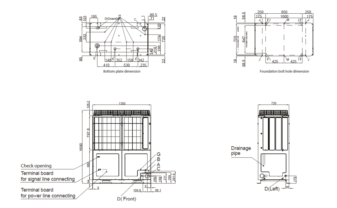
External dimensions (W/D/H) | mm | 1350×720×1690 | 1350×720×1690 | 1350×720×1690 | 1350×720×1690 | 1350×720×1690 | ||
Shipping dimensions (W/D/H) | mm | 1450×826×1885 | 1450×826×1885 | 1450×826×1885 | 1450×826×1885 | 1450×826×1885 | ||
Net/Shipping weight | kg | 269/305 | 269/305 | 269/305 | 275/311 | 323/359 | ||
Compressor type | DC INV. SCROLL | |||||||
Compressor brand | MITSUBISHІ ELECTRIC | |||||||
Compressor quantity | 1INV | |||||||
Refrigerant type | R410A | |||||||
Refrigerant charge | kg | 9.7 | 9.7 | 9.7 | 10 | 10 | ||
Refrigerant liquid pipe | mm | 9.52 | 9.52 | 12.7 | 12.7 | 12.7 | ||
Installation | Refrigerant gas pipe | mm | 19.05 | 22.22 | 25.4 | 25.4 | 28.58 | |
Oil equalization pipe | mm | 9.52 | 9.52 | 9.52 | 9.52 | 9.52 | ||
Max.total pipe length | m | 1000 | 1000 | 1000 | 1000 | 1000 | ||
Max. pipe length (Equivalent/Actual) |
m | 190/165 | 190/165 | 190/165 | 190/165 | 190/165 | ||
Max drop between I.U.&O.U (O.U up/down)1 |
m | 90/110 | 90/110 | 90/110 | 90/110 | 90/110 | ||
Standard drop between I.U.&O.U2 | m | 50/40 | 50/40 | 50/40 | 50/40 | 50/40 | ||
Max drop between I.U3 | m | 30 | 30 | 30 | 30 | 30 | ||
Standard drop between I.U4 | m | 18 | 18 | 18 | 18 | 18 | ||
External static pressure | Pa | 82 | 82 | 82 | 82 | 82 | ||
Connection ratio | Connectable indoor unit ratio | % | 50-160 | 50-160 | 50-160 | 50-160 | 50-160 | |
Maximum number of indoor units | 18 | 20 | 24 | 29 | 33 | |||
Working temp. | Cooling(DB) | °C | (-5...50) | (-5...50) | (-5...50) | (-5...50) | (-5...50) | |
Heating(WB) | °C | (-23...21) | (-23...21) | (-23...21) | (-23...21) | (-23...21) |
Specifications | Units | MOV6-18X1EW1AD | MOV6-20X1EW1AD | MOV6-22X1EW1AD | MOV6-24X1EW1AD | ||
/ | / | / | / | ||||
Combination model | / | / | / | / | |||
/ | / | / | / | ||||
Capacity range | Hp | 18 | 20 | 22 | 24 | ||
Capacity | Cooling | kW | 50.4 | 56 | 61.5 | 68 | |
Heating | kW | 56.5 | 63 | 69 | 73 | ||
Power supply | Ph/V/Hz | 3/380-400/50/60 | 3/380-400/50/60 | 3/380-400/50/60 | 3/380-400/50/60 | ||
Rated power input | kW | 13.62 | 15.56 | 17.57 | 19.71 | ||
Cooling | Max power input | kW | 22.10 | 25.19 | 30.56 | 37.47 | |
Rated current | A | 22.50 | 25.69 | 29.02 | 32.55 | ||
Electrical parameters | Max current | A | 36.15 | 41.1 | 49.65 | 60.45 | |
Rated power input | kW | 13.95 | 15.95 | 18.16 | 19.47 | ||
Heating | Max power input | kW | 22.68 | 25.19 | 27.72 | 28.62 | |
Rated current | А | 23.04 | 26.34 | 29.99 | 32.15 | ||
Max current | А | 37.8 | 42 | 46.05 | 47.4 | ||
EER | 3.70 | 3.60 | 3.50 | 3.45 | |||
COP | 4.05 | 3.95 | 3.80 | 3.75 | |||
SEER | 6.13 | 6.00 | 5.88 | 5.69 | |||
SCOP | 4.27 | 4.19 | 3.99 | 3.87 | |||
Air flow | m³/h | 16200/15000 | 16200/15000 | 16200/15000 | 16200/15000 | ||
Performance | Sound pressure level | dB(A) | 62 | 62 | 62 | 63 | |
Sound power level | dB(A) | 79 | 79 | 79 | 80 | ||
External dimensions (W/D/H) | mm | 1350×720×2048 | 1350×720×2048 | 1350×720×2048 | 1350×720×2048 | ||
Shipping dimensions (W/D/H) | mm | 1450×826×2225 | 1450×826×2225 | 1450×826×2225 | 1450×826×2225 | ||
Net/Shipping weight | kg | 354/400 | 354/400 | 380/426 | 380/426 | ||
Compressor type | DC INV. SCROLL | ||||||
Compressor brand | MITSUBISHІ ELECTRIC | ||||||
Compressor quantity | 2INV | ||||||
Refrigerant type | R410A | ||||||
Refrigerant charge | kg | 10 | 10 | 10 | 10 | ||
Refrigerant liquid pipe | mm | 15.88 | 15.88 | 15.88 | 15.88 | ||
Installation | Refrigerant gas pipe | mm | 28.58 | 28.58 | 28.58 | 28.58 | |
Oil equalization pipe | mm | 9.52 | 9.52 | 9.52 | 9.52 | ||
Max.total pipe length | m | 1000 | 1000 | 1000 | 1000 | ||
Max. pipe length (Equivalent/Actual) |
m | 190/165 | 190/165 | 190/165 | 190/165 | ||
Max drop between I.U.&O.U (O.U up/down)1 |
m | 90/110 | 90/110 | 90/110 | 90/110 | ||
Standard drop between I.U.&O.U2 | m | 50/40 | 50/40 | 50/40 | 50/40 | ||
Max drop between I.U3 | m | 30 | 30 | 30 | 30 | ||
Standard drop between I.U4 | m | 18 | 18 | 18 | 18 | ||
External static pressure | Pa | 82 | 82 | 82 | 82 | ||
Connection ratio | Connectable indoor unit ratio | % | 50-160 | 50-160 | 50-160 | 50-160 | |
Maximum number of indoor units | 37 | 41 | 45 | 49 | |||
Working temp. | Cooling(DB) | °C | (-5...50) | (-5...50) | (-5...50) | (-5...50) | |
Heating(WB) | °C | (-23...21) | (-23...21) | (-23...21) | (-23...21) |
Combination Module: 26-48HP
(2 modules)
T1 3PH/380~400V/50(60)Hz
Specifications | Units | MOV6-28X1EW1AD | MOV6-30X1EW1AD | MOV6-32X1EW1AD | |||
MOV6-12X1EW1AD | MOV6-14X1EW1AD | MOV6-14X1EW1AD | MOV6-14X1EW1AD | ||||
Combination model | MOV6-14X1EW1AD | MOV6-14X1EW1AD | MOV6-16X1EW1AD | MOV6-18X1EW1AD | |||
/ | / | / | / | ||||
Capacity range | Hp | 26 | 28 | 30 | 32 | ||
Capacity | Cooling | kW | 73.5 | 80 | 85 | 90.4 | |
Heating | kW | 82.5 | 90 | 95 | 101.5 | ||
Power supply | Ph/V/Hz | 3/380-400/50/60 | 3/380-400/50/60 | 3/380-400/50/60 | 3/380-400/50/60 | ||
Rated power input | kW | 18.85 | 20.51 | 22.16 | 23.88 | ||
Cooling | Max power input | kW | 31.64 | 33.81 | 39.59 | 39.00 | |
Rated current | A | 31.12 | 33.88 | 36.60 | 39.43 | ||
Electrical parameters | Max current | A | 53.5 | 56.8 | 65.2 | 64.55 | |
Rated power input | kW | 19.44 | 21.43 | 22.76 | 24.66 | ||
Heating | Max power input | kW | 29.28 | 31.20 | 32.80 | 38.28 | |
Rated current | А | 32.10 | 35.39 | 37.59 | 40.73 | ||
Max current | А | 47.3 | 50.4 | 53.08 | 63 | ||
EER | 3.90 | 3.90 | 3.84 | 3.79 | |||
COP | 4.24 | 4.20 | 4.17 | 4.12 | |||
SEER | 6.63 | 6.48 | 6.21 | 6.29 | |||
SCOP | 4.84 | 4.73 | 4.41 | 4.46 | |||
Air flow | m³/h | 30000/26400 | 30000/26400 | 30600/27600 | 31200/28200 | ||
Performance | Sound pressure level | dB(A) | 62 | 62.5 | 63 | 64 | |
Sound power level | dB(A) | 79 | 80 | 80 | 81 | ||
External dimensions (W/D/H) | mm | 1350×720×1690+ 1350×720×1690 |
(1350×720×1690)*2 | 1350×720×1690+ 1350×720×1690 |
1350×720×1690+ 1350×720×2048 |
||
Shipping dimensions (W/D/H) | mm | 1450×826×1885+ 1450×826×1885 |
(1450×826×1885)*2 | 1450×826×1885+ 1450×826×1885 |
1450×826×1885+ 1450×826×2225 |
||
Net/Shipping weight | kg | 269/305+275/311 | 275/311+275/311 | 275/311+323/359 | 275/311+354/400 | ||
Compressor type | DC INV. SCROLL | ||||||
Compressor brand | MITSUBISHІ ELECTRIC | ||||||
Compressor quantity | 1INV+1INV | 1INV*2 | 1INV+2INV | 1INV+2INV | |||
Refrigerant type | R410A | ||||||
Refrigerant charge | kg | 19.7 | 10 | 10 | 10 | ||
Refrigerant liquid pipe | mm | 19.05 | 19.05 | 19.05 | 19.05 | ||
Installation | Refrigerant gas pipe | mm | 31.8 | 31.8 | 31.8 | 31.8 | |
Oil equalization pipe | mm | 9.52 | 9.52 | 9.52 | 9.52 | ||
Max.total pipe length | m | 1000 | 1000 | 1000 | 1000 | ||
Max. pipe length (Equivalent/Actual) |
m | 190/165 | 190/165 | 190/165 | 190/165 | ||
Max drop between I.U.&O.U (O.U up/down)1 |
m | 90/110 | 90/110 | 90/110 | 90/110 | ||
Standard drop between I.U.&O.U2 | m | 50/40 | 50/40 | 50/40 | 50/40 | ||
Max drop between I.U3 | m | 30 | 30 | 30 | 30 | ||
Standard drop between I.U4 | m | 18 | 18 | 18 | 18 | ||
External static pressure | Pa | 82 | 82 | 82 | 82 | ||
Connection ratio | Connectable indoor unit ratio | % | 50-160 | 50-160 | 50-160 | 50-160 | |
Maximum number of indoor units | 53 | 58 | 62 | 64 | |||
Working temp. | Cooling(DB) | °C | (-5...50) | (-5...50) | (-5...50) | (-5...50) | |
Heating(WB) | °C | (-23...21) | (-23...21) | (-23...21) | (-23...21) |
Specifications | Units | MOV6-34X1EW1AD | MOV6-36X1EW1AD | MOV6-38X1EW1AD | MOV6-40X1EW1AD | ||
MOV6-16X1EW1AD | MOV6-16X1EW1AD | MOV6-18X1EW1AD | MOV6-20X1EW1AD | ||||
Combination model | MOV6-18X1EW1AD | MOV6-20X1EW1AD | MOV6-20X1EW1AD | MOV6-20X1EW1AD | |||
/ | / | / | / | ||||
Capacity range | Hp | 34 | 36 | 38 | 40 | ||
Capacity | Cooling | kW | 95.4 | 101 | 106.4 | 112 | |
Heating | kW | 106.5 | 113 | 119.5 | 126 | ||
Power supply | Ph/V/Hz | 3/380-400/50/60 | 3/380-400/50/60 | 3/380-400/50/60 | 3/380-400/50/60 | ||
Rated power input | kW | 25.53 | 27.46 | 29.18 | 31.11 | ||
Cooling | Max power input | kW | 44.78 | 47.87 | 47.28 | 50.37 | |
Rated current | A | 42.16 | 45.35 | 48.19 | 51.38 | ||
Electrical parameters | Max current | A | 72.95 | 77.9 | 77.25 | 82.2 | |
Rated power input | kW | 26.00 | 28.00 | 29.90 | 31.90 | ||
Heating | Max power input | kW | 39.88 | 42.39 | 47.87 | 50.37 | |
Rated current | А | 42.94 | 46.24 | 49.38 | 52.68 | ||
Max current | А | 65.68 | 69.88 | 79.8 | 84 | ||
EER | 3.74 | 3.68 | 3.65 | 3.60 | |||
COP | 4.10 | 4.04 | 4.00 | 3.95 | |||
SEER | 6.07 | 6.01 | 6.08 | 6.00 | |||
SCOP | 4.21 | 4.17 | 4.23 | 4.19 | |||
Air flow | m³/h | 31800/29400 | 31800/29400 | 32400/30000 | 32400/30000 | ||
Performance | Sound pressure level (H) | dB(A) | 64.5 | 64.5 | 65 | 65 | |
Sound power level (H) | dB(A) | 82 | 82 | 83 | 83 | ||
External dimensions (W/D/H) | mm | 1350×720×1690+ 1350×720×2048 |
1350×720×1690+ 1350×720×2048 |
1350×720×2048+ 1350×720×2048 |
(1350×720×2048)*2 | ||
Shipping dimensions (W/D/H) | mm | 1450×826×1885+ 1450×826×2225 |
1450×826×1885+ 1450×826×2225 |
1450×826×2225+ 1450×826×2225 |
(1450×826×2225)*2 | ||
Net/Shipping weight | kg | 323/359+354/400 | 323/359+354/400 | 354/400+354/400 | 354/400+354/400 | ||
Compressor type | DC INV. SCROLL | ||||||
Compressor brand | MITSUBISHІ ELECTRIC | ||||||
Compressor quantity | 2INV+2INV | 2INV+2INV | 2INV+2INV | 2INV*2 | |||
Refrigerant type | R410A | ||||||
Refrigerant charge | kg | 20 | 20 | 20 | 20 | ||
Refrigerant liquid pipe | mm | 19.05 | 19.05 | 19.05 | 19.05 | ||
Installation | Refrigerant gas pipe | mm | 38.1 | 38.1 | 38.1 | 38.1 | |
Oil equalization pipe | mm | 9.52 | 9.52 | 9.52 | 9.52 | ||
Max.total pipe length | m | 1000 | 1000 | 1000 | 1000 | ||
Max. pipe length (Equivalent/Actual) |
m | 190/165 | 190/165 | 190/165 | 190/165 | ||
Max drop between I.U.&O.U (O.U up/down)1 |
m | 90/110 | 90/110 | 90/110 | 90/110 | ||
Standard drop between I.U.&O.U2 | m | 50/40 | 50/40 | 50/40 | 50/40 | ||
Max drop between I.U3 | m | 30 | 30 | 30 | 30 | ||
Standard drop between I.U4 | m | 18 | 18 | 18 | 18 | ||
External static pressure | Pa | 82 | 82 | 82 | 82 | ||
Connection ratio | Connectable indoor unit ratio | % | 50-160 | 50-160 | 50-160 | 50-160 | |
Maximum number of indoor units | 37 | 41 | 45 | 49 | |||
Working temp. | Cooling(DB) | °C | (-5...50) | (-5...50) | (-5...50) | (-5...50) | |
Heating(WB) | °C | (-23...21) | (-23...21) | (-23...21) | (-23...21) |
Specifications | Units | MOV6-42X1EW1AD | MOV6-44X1EW1AD | MOV6-46X1EW1AD | MOV6-48X1EW1AD | ||
MOV6-20X1EW1AD | MOV6-20X1EW1AD | MOV6-22X1EW1AD | MOV6-24X1EW1AD | ||||
Combination model | MOV6-22X1EW1AD | MOV6-24X1EW1AD | MOV6-24X1EW1AD | MOV6-24X1EW1AD | |||
/ | / | / | / | ||||
Capacity range | Hp | 42 | 44 | 46 | 48 | ||
Capacity | Cooling | kW | 117.5 | 124 | 129.5 | 136 | |
Heating | kW | 132 | 136 | 142 | 146 | ||
Power supply | Ph/V/Hz | 3/380-400/50/60 | 3/380-400/50/60 | 3/380-400/50/60 | 3/380-400/50/60 | ||
Rated power input | kW | 33.13 | 35.27 | 37.28 | 39.42 | ||
Cooling | Max power input | kW | 55.75 | 62.66 | 68.03 | 74.94 | |
Rated current | A | 54.71 | 58.24 | 61.57 | 65.10 | ||
Electrical parameters | Max current | A | 90.75 | 101.55 | 110.1 | 120.9 | |
Rated power input | kW | 34.11 | 35.42 | 37.62 | 38.93 | ||
Heating | Max power input | kW | 52.91 | 53.81 | 56.34 | 57.24 | |
Rated current | А | 56.33 | 58.49 | 62.14 | 64.30 | ||
Max current | А | 88.05 | 89.4 | 93.45 | 94.8 | ||
EER | 3.55 | 3.52 | 3.47 | 3.45 | |||
COP | 3.87 | 3.84 | 3.77 | 3.75 | |||
SEER | 5.96 | 5.84 | 5.80 | 5.69 | |||
SCOP | 4.08 | 4.01 | 3.93 | 3.87 | |||
Air flow | m³/h | 32400/30000 | 32400/30000 | 32400/30000 | 32400/30000 | ||
Performance | Sound pressure level | dB(A) | 65 | 65.5 | 65.5 | 66 | |
Sound power level | dB(A) | 83 | 83 | 83 | 84 | ||
External dimensions (W/D/H) | mm | 1350×720×2048+ 1350×720×2048 |
1350×720×2048+ 1350×720×2048 |
1350×720×2048+ 1350×720×2048 |
(1350×720×2048)*2 | ||
Shipping dimensions (W/D/H) | mm | 1450×826×2225+ 1450×826×2225 |
1450×826×2225+ 1450×826×2225 |
1450×826×2225+ 1450×826×2225 |
(1450×826×2225)*2 | ||
Net/Shipping weight | kg | 354/400+380/426 | 354/400+380/426 | 380/426+380/426 | 380/426+380/426 | ||
Compressor type | DC INV. SCROLL | ||||||
Compressor brand | MITSUBISHІ ELECTRIC | ||||||
Compressor quantity | 2INV+2INV | 2INV+2INV | 2INV+2INV | 2INV*2 | |||
Refrigerant type | R410A | ||||||
Refrigerant charge | kg | 20 | 20 | 20 | 20 | ||
Refrigerant liquid pipe | mm | 19.05 | 19.05 | 19.05 | 19.05 | ||
Installation | Refrigerant gas pipe | mm | 38.1 | 38.1 | 38.1 | 38.1 | |
Oil equalization pipe | mm | 9.52 | 9.52 | 9.52 | 9.52 | ||
Max.total pipe length | m | 1000 | 1000 | 1000 | 1000 | ||
Max. pipe length (Equivalent/Actual) |
m | 190/165 | 190/165 | 190/165 | 190/165 | ||
Max drop between I.U.&O.U (O.U up/down)1 |
m | 90/110 | 90/110 | 90/110 | 90/110 | ||
Standard drop between I.U.&O.U2 | m | 50/40 | 50/40 | 50/40 | 50/40 | ||
Max drop between I.U3 | m | 30 | 30 | 30 | 30 | ||
Standard drop between I.U4 | m | 18 | 18 | 18 | 18 | ||
External static pressure | Pa | 82 | 82 | 82 | 82 | ||
Connection ratio | Connectable indoor unit ratio | % | 50-160 | 50-160 | 50-160 | 50-160 | |
Maximum number of indoor units | 64 | 64 | 64 | 64 | |||
Working temp. | Cooling(DB) | °C | (-5...50) | (-5...50) | (-5...50) | (-5...50) | |
Heating(WB) | °C | (-23...21) | (-23...21) | (-23...21) | (-23...21) |
Combination Module: 50-72HP
(3 modules)
T1 3PH/380~400V/50(60)Hz
Specifications | Units | MOV6-50X1EW1AD | MOV6-52X1EW1AD | MOV6-54X1EW1AD | MOV6-56X1EW1AD | ||
MOV6-14X1EW1AD | MOV6-16X1EW1AD | MOV6-16X1EW1AD | MOV6-16X1EW1AD | ||||
Combination model | MOV6-18X1EW1AD | MOV6-16X1EW1AD | MOV6-18X1EW1AD | MOV6-20X1EW1AD | |||
MOV6-18X1EW1AD | MOV6-20X1EW1AD | MOV6-20X1EW1AD | MOV6-20X1EW1AD | ||||
Capacity range | Hp | 50 | 52 | 54 | 56 | ||
Capacity | Cooling | kW | 140.8 | 146 | 151.4 | 157 | |
Heating | kW | 158 | 163 | 169.5 | 176 | ||
Power supply | Ph/V/Hz | 3/380-400/50/60 | 3/380-400/50/60 | 3/380-400/50/60 | 3/380-400/50/60 | ||
Rated power input | kW | 37.50 | 39.37 | 41.08 | 43.02 | ||
Cooling | Max power input | kW | 61.10 | 70.55 | 69.96 | 73.05 | |
Rated current | A | 61.93 | 65.01 | 67.85 | 71.04 | ||
Electrical parameters | Max current | A | 100.7 | 114.7 | 114.05 | 119 | |
Rated power input | kW | 38.62 | 40.05 | 41.95 | 43.95 | ||
Heating | Max power input | kW | 60.96 | 59.59 | 65.07 | 67.57 | |
Rated current | А | 63.77 | 66.14 | 69.28 | 72.58 | ||
Max current | А | 100.8 | 97.76 | 107.68 | 111.88 | ||
EER | 3.75 | 3.71 | 3.69 | 3.65 | |||
COP | 4.09 | 4.07 | 4.04 | 4.00 | |||
SEER | 6.36 | 6.12 | 6.05 | 6.01 | |||
SCOP | 4.39 | 4.17 | 4.20 | 4.18 | |||
Air flow | m³/h | 47400/43800 | 47400/43800 | 48000/44400 | 48000/44400 | ||
Performance | Sound pressure level | dB(A) | 66 | 66 | 66.5 | 66.5 | |
Sound power level | dB(A) | 84 | 84 | 85 | 85 | ||
External dimensions (W/D/H) | mm | 1350×720×1690+ (1350×720×2048)*2 |
(1350×720×1690)*2+ 1350×720×2048 |
1350×720×1690+1350×720× 2048+1350×720×2048 |
1350×720×1690+ (1350×720×2048)*2 |
||
Shipping dimensions (W/D/H) | mm | 1450×826×1885+ (1450×826×2225)*2 |
1450×826×1885)*2+ 1450×826×2225 |
1450×826×1885+1450×826× 2225+1450×826×2225 |
1450×826×1885+ (1450×826×2225)*2 |
||
Net/Shipping weight | kg | 275/311+354/400+354/400 | 323/359+354/400+354/400 | 323/359+354/400+354/400 | 323/359+354/400+354/400 | ||
Compressor type | DC INV. SCROLL | ||||||
Compressor brand | MITSUBISHІ ELECTRIC | ||||||
Compressor quantity | 1INV+2INV*2 | 2INV*2+2INV | 2INV+2INV+2INV | 2INV+2INV*2 | |||
Refrigerant type | R410A | ||||||
Refrigerant charge | kg | 30 | 30 | 30 | 30 | ||
Refrigerant liquid pipe | mm | 19.05 | 19.05 | 19.05 | 19.05 | ||
Installation | Refrigerant gas pipe | mm | 38.1 | 38.1 | 38.1 | 41.3 | |
Oil equalization pipe | mm | 9.52 | 9.52 | 9.52 | 9.52 | ||
Max.total pipe length | m | 1000 | 1000 | 1000 | 1000 | ||
Max. pipe length (Equivalent/Actual) |
m | 190/165 | 190/165 | 190/165 | 190/165 | ||
Max drop between I.U.&O.U (O.U up/down)1 |
m | 90/110 | 90/110 | 90/110 | 90/110 | ||
Standard drop between I.U.&O.U2 | m | 50/40 | 50/40 | 50/40 | 50/40 | ||
Max drop between I.U3 | m | 30 | 30 | 30 | 30 | ||
Standard drop between I.U4 | m | 18 | 18 | 18 | 18 | ||
External static pressure | Pa | 82 | 82 | 82 | 82 | ||
Connection ratio | Connectable indoor unit ratio | % | 50-160 | 50-160 | 50-160 | 50-160 | |
Maximum number of indoor units | 64 | 64 | 64 | 64 | |||
Working temp. | Cooling(DB) | °C | (-5...50) | (-5...50) | (-5..50) | (-5...50) | |
Heating(WB) | °C | (-23...21) | (-23...21) | (-23...21) | (-23..21) |
Specifications | Units | MOV6-58X1EW1AD | MOV6-60X1EW1AD | MOV6-62X1EW1AD | MOV6-64X1EW1AD | ||
MOV6-18X1EW1AD | MOV6-20X1EW1AD | MOV6-20X1EW1AD | MOV6-20X1EW1AD | ||||
Combination model | MOV6-20X1EW1AD | MOV6-20X1EW1AD | MOV6-20X1EW1AD | MOV6-20X1EW1AD | |||
MOV6-20X1EW1AD | MOV6-20X1EW1AD | MOV6-22X1EW1AD | MOV6-24X1EW1AD | ||||
Capacity range | Hp | 58 | 60 | 62 | 64 | ||
Capacity | Cooling | kW | 162.4 | 168 | 173.5 | 180 | |
Heating | kW | 182.5 | 189 | 195 | 199 | ||
Power supply | Ph/V/Hz | 3/380-400/50/60 | 3/380-400/50/60 | 3/380-400/50/60 | 3/380-400/50/60 | ||
Rated power input | kW | 44.73 | 46.67 | 48.68 | 50.82 | ||
Cooling | Max power input | kW | 72.47 | 75.56 | 80.93 | 87.84 | |
Rated current | A | 73.88 | 77.07 | 80.40 | 83.93 | ||
Electrical parameters | Max current | A | 118.35 | 123.3 | 131.85 | 142.65 | |
Rated power input | kW | 45.85 | 47.85 | 50.06 | 51.37 | ||
Heating | Max power input | kW | 73.05 | 75.56 | 78.09 | 78.99 | |
Rated current | А | 75.72 | 79.02 | 82.67 | 84.83 | ||
Max current | А | 121.8 | 126 | 130.05 | 131.4 | ||
EER | 3.63 | 3.60 | 3.56 | 3.54 | |||
COP | 3.98 | 3.95 | 3.90 | 3.87 | |||
SEER | 6.06 | 6.00 | 5.98 | 5.90 | |||
SCOP | 4.27 | 4.19 | 4.12 | 4.07 | |||
Air flow | m³/h | 48600/45000 | 48600/45000 | 48600/45000 | 48600/45000 | ||
Performance | Sound pressure level | dB(A) | 67 | 67 | 67 | 67 | |
Sound power level | dB(A) | 85 | 85 | 85 | 85 | ||
External dimensions (W/D/H) | mm | 1350×720×2048+ (1350×720×2048)*2 |
(1350×720×2048)*3 | (1350×720×2048)*2+ 1350×720×2048 |
(1350×720×2048)*2+ 1350×720×2048 |
||
Shipping dimensions (W/D/H) | mm | 1450×826×2225+ (1450×826×2225)*2 |
(1450×826×2225)*3 | (1450×826×2225)*2+ (450×826×2225 |
(1450×826×2225)*2+ 1450×826×2225 |
||
Net/Shipping weight | kg | 354/400+354/400+380/426 | 354/400+354/400+380/426 | 354/400+354/400+380/426 | 354/400+354/400+380/426 | ||
Compressor type | DC INV. SCROLL | ||||||
Compressor brand | MITSUBISHІ ELECTRIC | ||||||
Compressor quantity | 2INV+2INV*2 | 2INV*3 | 2INV*2+2INV | 2INV*2+2INV | |||
Refrigerant type | R410A | ||||||
Refrigerant charge | kg | 30 | 30 | 30 | 30 | ||
Refrigerant liquid pipe | mm | 19.05 | 19.05 | 19.05 | 19.05 | ||
Installation | Refrigerant gas pipe | mm | 41.3 | 41.3 | 41.3 | 41.3 | |
Oil equalization pipe | mm | 9.52 | 9.52 | 9.52 | 9.52 | ||
Max.total pipe length | m | 1000 | 1000 | 1000 | 1000 | ||
Max. pipe length (Equivalent/Actual) |
m | 190/165 | 190/165 | 190/165 | 190/165 | ||
Max drop between I.U.&O.U (O.U up/down)1 |
m | 90/110 | 90/110 | 90/110 | 90/110 | ||
Standard drop between I.U.&O.U2 | m | 50/40 | 50/40 | 50/40 | 50/40 | ||
Max drop between I.U3 | m | 30 | 30 | 30 | 30 | ||
Standard drop between I.U4 | m | 18 | 18 | 18 | 18 | ||
External static pressure | Pa | 82 | 82 | 82 | 82 | ||
Connection ratio | Connectable indoor unit ratio | % | 50-160 | 50-160 | 50-160 | 50-160 | |
Maximum number of indoor units | 64 | 64 | 64 | 64 | |||
Working temp. | Cooling(DB) | °C | (-5...50) | (-5...50) | (-5...50) | (-5...50) | |
Heating(WB) | °C | (-23...21) | (-23...21) | (-23...21) | (-23...21) |
Specifications | Units | MOV6-66X1EW1AD | MOV6-68X1EW1AD | MOV6-70X1EW1AD | MOV6-72X1EW1AD | ||
MOV6-20X1EW1AD | MOV6-20X1EW1AD | MOV6-22X1EW1AD | MOV6-24X1EW1AD | ||||
Combination model | MOV6-22X1EW1AD | MOV6-24X1EW1AD | MOV6-24X1EW1AD | MOV6-24X1EW1AD | |||
MOV6-24X1EW1AD | MOV6-24X1EW1AD | MOV6-24X1EW1AD | MOV6-24X1EW1AD | ||||
Capacity range | Hp | 66 | 68 | 70 | 72 | ||
Capacity | Cooling | kW | 185.5 | 192 | 197.5 | 204 | |
Heating | kW | 205 | 209 | 215 | 219 | ||
Power supply | Ph/V/Hz | 3/380-400/50/60 | 3/380-400/50/60 | 3/380-400/50/60 | 3/380-400/50/60 | ||
Rated power input | kW | 52.84 | 54.98 | 56.99 | 59.13 | ||
Cooling | Max power input | kW | 93.22 | 100.13 | 105.50 | 112.41 | |
Rated current | A | 87.26 | 90.79 | 94.12 | 97.65 | ||
Electrical parameters | Max current | A | 151.2 | 162 | 170.55 | 181.35 | |
Rated power input | kW | 53.57 | 54.88 | 57.09 | 58.40 | ||
Heating | Max power input | kW | 81.53 | 82.43 | 84.96 | 85.86 | |
Rated current | А | 88.48 | 90.64 | 94.29 | 96.45 | ||
Max current | А | 135.45 | 136.8 | 140.85 | 142.2 | ||
EER | 3.51 | 3.49 | 3.47 | 3.45 | |||
COP | 3.83 | 3.81 | 3.77 | 3.75 | |||
SEER | 5.86 | 5.79 | 5.77 | 5.69 | |||
SCOP | 4.00 | 3.96 | 3.91 | 3.87 | |||
Air flow | m³/h | 48600/45000 | 48600/45000 | 48600/45000 | 48600/45000 | ||
Performance | Sound pressure level | dB(A) | 67 | 67.5 | 67.5 | 68 | |
Sound power level | dB(A) | 86 | 86 | 86 | 86 | ||
External dimensions (W/D/H) | mm | 1350×720×2048+1350×720× 2048+1350×720×2048 |
1350×720×2048+ (1350×720×2048)*2 |
1350×720×2048+ (1350×720×2048)*2 |
(1350×720×2048)*3 | ||
Shipping dimensions (W/D/H) | mm | 1450×826×2225+1450× 826×2225+1450×826×2225 |
1450×826×2225+ (1450×826×2225)*2 |
1450×826×2225+ (1450×826×2225)*2 |
(1450×826×2225)*3 | ||
Net/Shipping weight | kg | 354/400+380/426+380/426 | 354/400+380/426+380/426 | 380/426+380/426+380/426 | 380/426+380/426+380/426 | ||
Compressor type | DC INV. SCROLL | ||||||
Compressor brand | MITSUBISHІ ELECTRIC | ||||||
Compressor quantity | 2INV+2INV+2INV | 2INV+2INV*2 | 2INV+2INV*2 | 2INV*3 | |||
Refrigerant type | R410A | ||||||
Refrigerant charge | kg | 30 | 30 | 30 | 30 | ||
Refrigerant liquid pipe | mm | 22.22 | 22.22 | 22.22 | 22.22 | ||
Installation | Refrigerant gas pipe | mm | 44.5 | 44.5 | 44.5 | 44.5 | |
Oil equalization pipe | mm | 9.52 | 9.52 | 9.52 | 9.52 | ||
Max.total pipe length | m | 1000 | 1000 | 1000 | 1000 | ||
Max. pipe length (Equivalent/Actual) |
m | 190/165 | 190/165 | 190/165 | 190/165 | ||
Max drop between I.U.&O.U (O.U up/down)1 |
m | 90/110 | 90/110 | 90/110 | 90/110 | ||
Standard drop between I.U.&O.U2 | m | 50/40 | 50/40 | 50/40 | 50/40 | ||
Max drop between I.U3 | m | 30 | 30 | 30 | 30 | ||
Standard drop between I.U4 | m | 18 | 18 | 18 | 18 | ||
External static pressure | Pa | 82 | 82 | 82 | 82 | ||
Connection ratio | Connectable indoor unit ratio | % | 50-160 | 50-160 | 50-160 | 50-160 | |
Maximum number of indoor units | 64 | 64 | 64 | 64 | |||
Working temp. | Cooling(DB) | °C | (-5...50) | (-5...50) | (-5...50) | (-5...50) | |
Heating(WB) | °C | (-23...21) | (-23...21) | (-23...21) | (-23...21) |
1. Power tested according to EN14511.
2. Capacities are for the following conditions:
Cooling: indoor temperature 27 °C DB/ 19 °C WB, outdoor temp. 35 °C DB, 7.5 m long connecting piping, 0 height difference.
Heating: indoor temperature 20 °C DB outdoor temp. 7 °C/6 °C WB, length of connecting pipelines – 7.5 m,height difference – 0
3. In accordance with our policy of innovation, some specifications are subject to change without notice.
MOV6-8X1EW2AD MOV6-10X1EW2AD MOV6-12X1EW1AD MOV6-14X1EW1AD MOV6-16X1EW1AD
MOV6-18X1EW1AD MOV6-20X1EW1AD MOV6-22X1EW1AD MOV6-24X1EW1AD
Note: when install air duct the air duct inside is rectangle: length × width ≥ 1300mm × 660mm